联系方式
+86 13316661002
+86 0769 88514001
+86 13316661002
该项目是位于广州南沙高速公路服务区的一个休息室,打破传统的建房模式,关键是从打地基到完工只用一个月,建造了颜值与实用性并存的两层轻钢房屋。

效果图
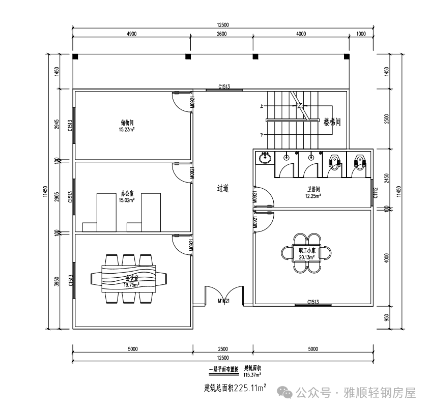
这是建造前效果图效果, 建筑总面积是225.11平方,分为上下两层,一层用于临时办公和职工小家,二层用于职工宿舍,整体空间设计合理,既满足居住要求,又提升居住舒适感。

一层平面布置图

二层平面布置图


实际完工效果
外墙选用米黄+深棕撞色,搭配白色收边线条,外观简约又高级,在光线下更是透出了细腻的层次感。


一层室内效果
走进门更惊喜,走廊宽敞明亮,室内精装修,墙面碳晶板的装饰美观耐用,保温隔音,吊顶采用隐形线条灯简约而不简单。

楼梯扶手也是精致的雕花款,细节完全不输商品房。


二层室内效果
二层是职工宿舍,整体装修也是以暖色调为主,非常温馨,完工后摆上家具就可以领包入住,和传统建房相比快速 高效 省时省力。


露台
二层特意设计的小露台,一边是放洗衣机区域,另一边休闲时喝茶聊天,偶尔烧烤都是不错的选择。
这样的轻钢房屋你喜欢吗?